16 Appartements I Umbau einer Wäscherei

Bauherr: Lebenshilfe Unterer Niederrhein e.V.
Beauftragung: LPH 1-8
Projektpartner:
Fertigstellung: 2023

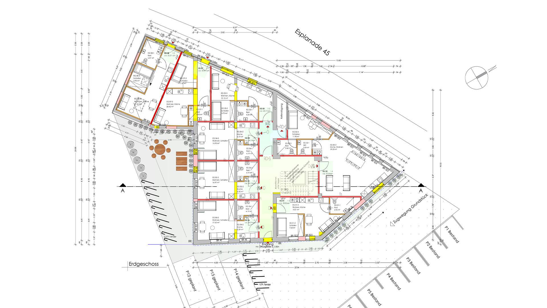
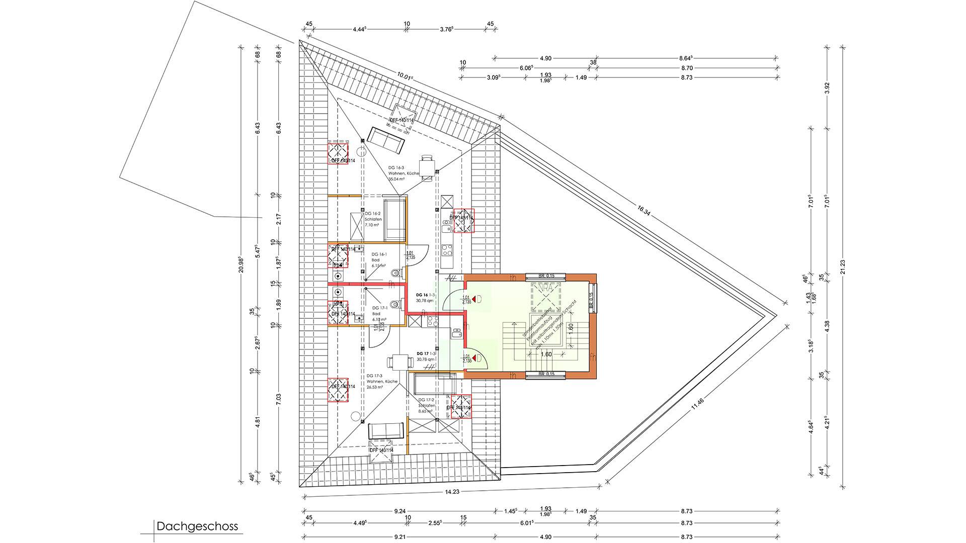
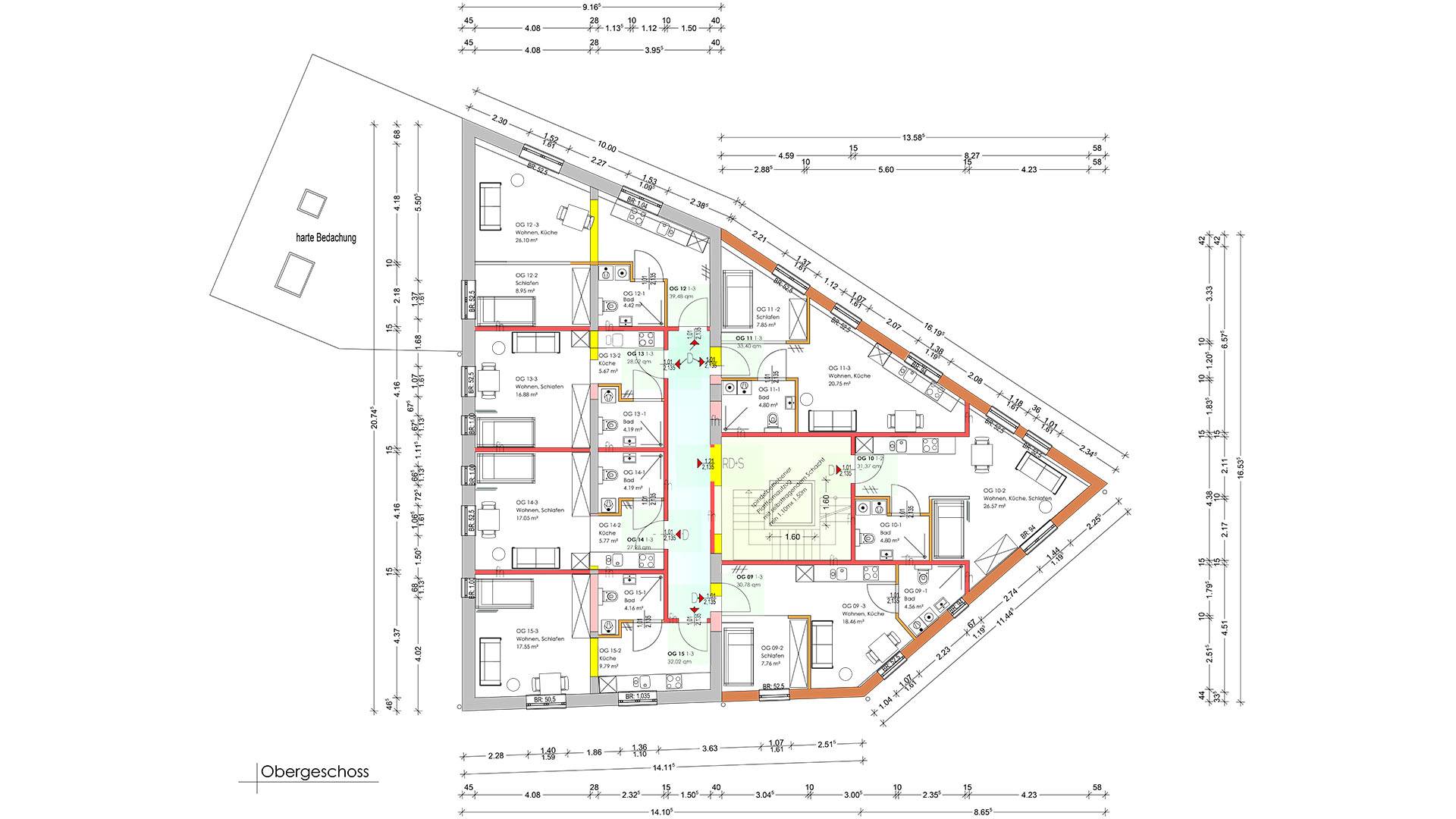
Ganz im Sinne von nachhaltigem Bauen erwirbt die Lebenshilfe Unterer Niederrhein e.V. das alte Gebäude der traditionsreichen Wäscherei Schweers an der Esplanade in Wesel. Unser Büro wird beauftragt, 16 Appartements zu integrieren. 

Eine zentrale Erschließung mit verglastem Aufzug dient dem barrierefreien Miteinander auch zwischen den einzelnen Wohnungen. Um das Unterfangen wirtschaftlich betreiben zu können, wird der 1-geschossige Gebäudeteil in Holz-Tafelbauweise um 1 Geschoss aufgestockt. Brandschutz, eine sehr alte Bausubstanz und die notwendigen Breiten barrierefreier Erschließungsflächen sind die besondere Herausforderung bei diesem Projekt.

Beachtlich ist, dass das Projekt in Zeiten von Pandemie und Kriegsbeginn in der Ukraine im vorgesehenen Kostenrahmen realisiert werden konnte.

Vergleich Vorher / Nachher